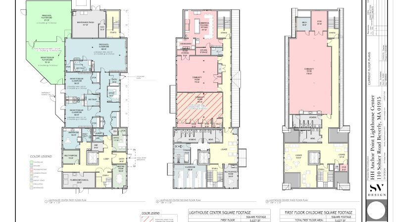
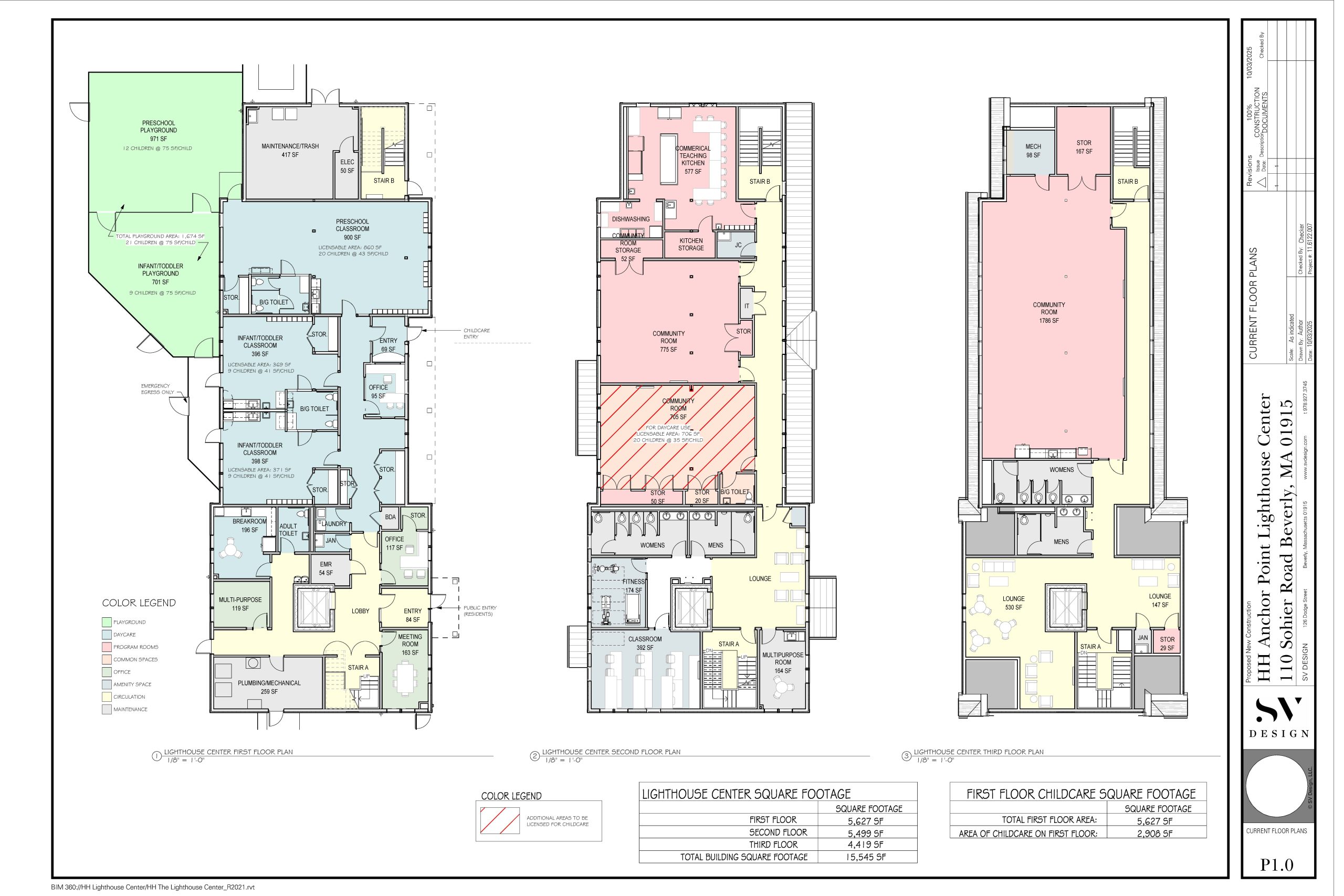
The Lighthouse Center (TLC) at Anchor Point – Beverly, MA
Community Education Building
Details:
- Community Education Building called The Lighthouse Center (TLC) will provide:
- Early Childhood Education Center (run by Pathways for Children
- Play Spaces
- Community Gardens
- After-school Programs
- Adult Education
- Solar Roof
- Funds raised through TLC Capital Campaign
- New construction located on a 5-acre lot with Anchor Point Family Housing
- Projected Construction: 2025-2027
Asbury Common – Hamilton, MA
Individual and Family Housing
Details:
- New construction situated on peaceful wooded lot
- 45 affordable family homes with one- two- and three-bedroom units
- Passive House Certified with rooftop solar (highest levels of sustainability)
- Projected Construction: 2026-2027
Windward Crossing – Rowley, MA
Integrated Supportive Housing
Partnership with The Cusack Family
Details:
- New construction of integrated housing on donated land
- 20 affordable supportive senior units
- 1 group home with 5 units for Adults with ASD (managed by Northeast ARC)
- 4 private ownership condos (owned/funded by supporting families)
- Community Center on-site (privately funded) will provide:
- Classrooms
- Fitness room
- Community kitchen
- Activity spaces
- Projected Construction: 2026-2027
Main Street – Gloucester, MA
Substantial Supportive Senior Housing
Collaboration with Gloucester Housing Authority
Details:
- 29 affordable one-bedroom homes for seniors
- Substantial support services for elders
- Enterprise Green Communities Certified
- Designs for flood resistance, solar roof and downtown Gloucester near amenities and services
- Projected Construction: 2027-2028
Depot Lane – Ipswich, MA
Family Housing
Details:
- 52 affordable family homes with one- two- and three-bedroom units
- *Passive House Certified with rooftop solar (*highest levels of sustainability)
- Transit Oriented Development (near transportation, services and amenities)
- Commercial space for Three Sisters (community-supported agriculture to distribute food)
- Projected Construction: 2027-2028
Schoolhouse Square – Lynn, MA
Individual and Family Housing
Details:
- 62 affordable homes for individuals and families with studios, one- two- and three-bedroom units
- Covered parking garage
- Enterprise Green Communities Certified with Solar
- Transit Oriented Development (near transportation, services and amenities)
- Projected Construction: 2027-2029
Washington Street – Gloucester, MA
Family Housing
Collaboration with The Planning Office of Urban Affairs
Details:
- 62 affordable family homes with one- two- and three-bedroom units
- Passive House Certified with rooftop solar (highest levels of sustainability)
- Projected Construction: 2028-2029
Lifebridge Supportive – Salem, MA
Individual Supportive Housing
Details:
- Supportive, permanent homes for individuals
- 52 new studio apartments
- 60 non-congregate shelter beds
- Projected Construction: 2028-2029


























